4 Unit Mixed Retail/Office
2725 S broad street, New Orleans, LA 70125

Overview
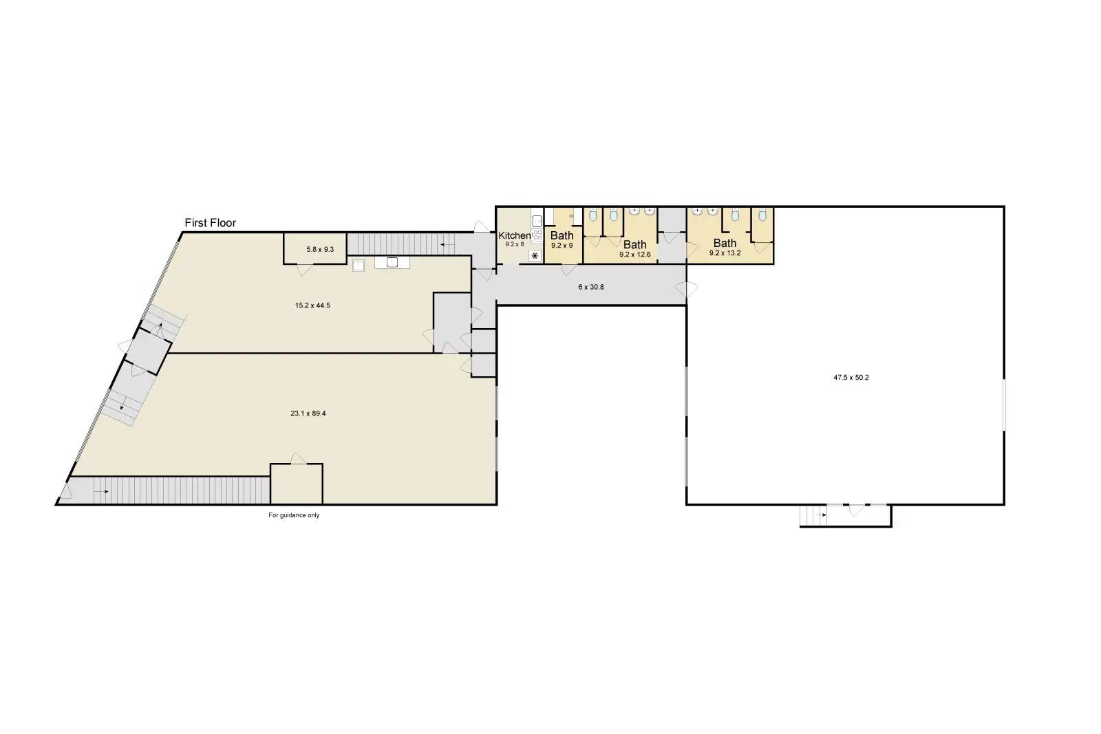
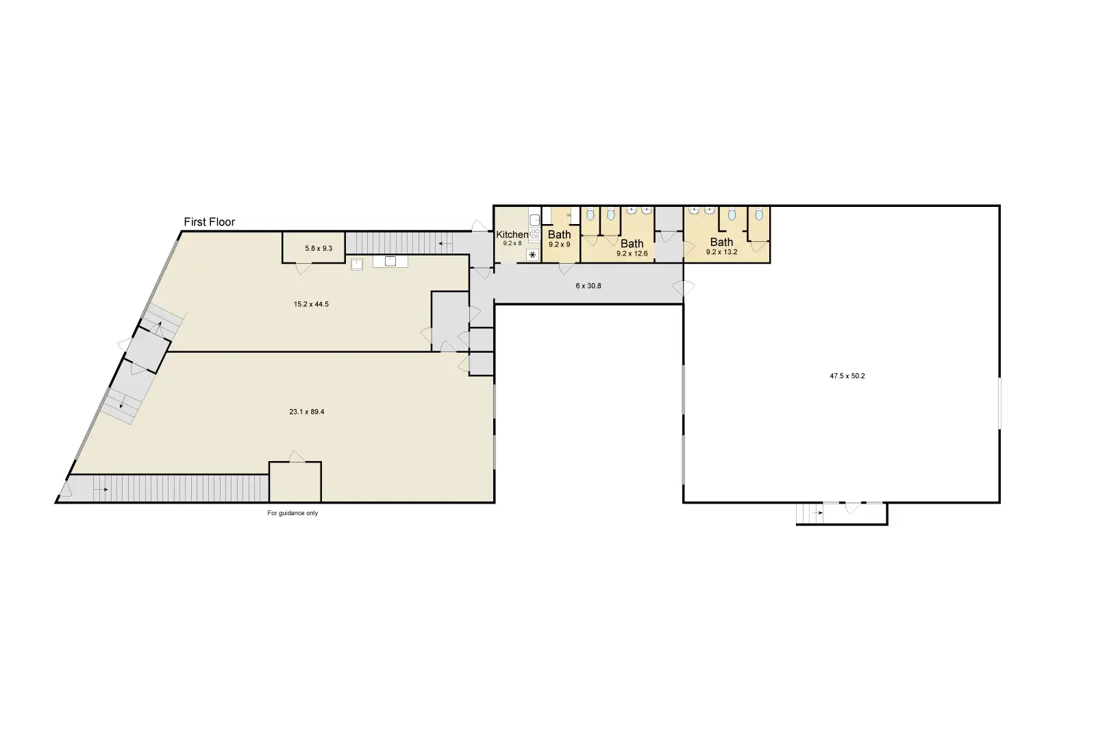
Incredible opportunity to purchase a 4-unit, multi-purpose commercial building at the bustling intersection of Broad Street and Washington Avenue neighboring vibrant businesses such as Laurel Street Bakery. The prime, high traffic location and ability to customize the spacious interiors to suit a multitude of unique business needs make it an excellent choice for a wide range of businesses. The first story boasts two street-facing suites perfect for retail or other customer-facing operations, one currently vacant (1,140 sq ft) and the other occupied by Piety and Desire Chocolate (919 sq ft). A third suite (2,238 sq ft) is located at the rear of the lot and currently occupied by Roulaison Distilling. The unit is separated from the front building by a shared courtyard, boasts a commercial loading dock, and is located just off the approximately 20 space gated parking lot that conveys with the property. On the second floor is an office suite (2,510 sq ft), most recently leased to one tenant, but easily functions as two suites (for a total of five), separated by a shared hallway and restrooms. The building was extensively renovated in 2013 and impeccably maintained in the years since. While it currently has a 50% occupancy rate in preparation for sale, the units have been easily leased in the past. Information about current and past tenancies available upon request, as are building plans and information about financing. Seller’s current financing is assumable. Please inquire.
For Sale
Secondary Uses: Mixed Use
- Sale Price
- $1,395,000
- Price Per SF
- $156.7/SF
- Building Size
- 8,903 SF
- Acres
- 0.34 ac
- Zoning
- C-1 GENERAL COMMERCIAL DISTRICT
- Signage
- On Building
- Max Contiguous
- 8,903
- Number of Buildings
- 1
- Floors
- 2
- Year Renovated
- 2013
- Construction Type
- Framed
- Parking Spaces
- 20
- Rentable SF
- 8,903
- Submarket
- Greater New Orleans
- Nearest MSA
- New Orleans-Metairie
- Property Status
- Existing
- Lot Size
- 66' x 133'
- In Opportunity Zone
- Yes
- Dock Number
- 1
- County
- Orleans Parish
- Created
- 01/17/2024
- Updated
- 04/25/2024
- Listing ID
- 0859ced7
- Parcel APN
- 412406407














