Active
2337 Canal St
2337 Canal St, New Orleans, LA 70119
1 / 23

Overview
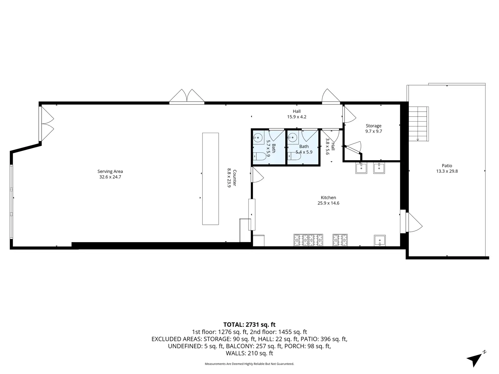
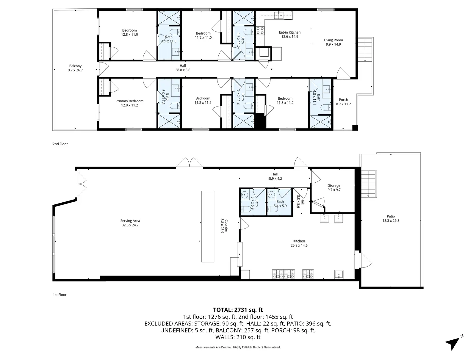
2337 Canal Street is a two-story mixed-use commercial asset. The property features a stabilized ground-floor restaurant tenant on a five-year lease (until November 30, 2028) and an income-generating mid-term furnished rental unit on the second floor, offering a strong turnkey investment opportunity for an investor.
Minutes from Downtown, Mid-City, and the Medical District, the property benefits from heavy daily transit and vehicle activity. The surrounding area is anchored by major institutions including University Medical Center and the VA Hospital and a strong mix of neighborhood retail, hospitality, and residential developments.
Property Highlights
- Two-story mixed-use commercial building
- Ground Floor (± 1,276 SF): leased to a restaurant tenant on a 5-year lease (until November 30, 2028)
- Second Floor (± 1,455 SF): active mid-term furnished rental unit (5 Beds / 5 Baths)
- Total SF: ~ 2,731 SF
- Income from: stabilized NNN restaurant lease + residential rental revenue
- Zoning: HU-MU
- Mechanical, electrical, and plumbing systems: updated in 2022
For Sale
Retail
Investment
- Sale Price
- $1,195,000
- Price Per SF
- $437.4/SF
- Building Size
- 2,732 SF
- Acres
- 0.059 ac
- Zoning
- HU-MU
- Zoning Description
- Historic Urban Neighborhood Mixed Use District
- Floors
- 2
- Parking Spaces
- 5
- Is End Cap
- Yes
- County
- Orleans Parish
- Created
- 12/08/2025
- Updated
- 12/11/2025
- Listing ID
- 14e788b0
- Parcel APN
- 206202813





















