307 Polly Ln
307 Polly Ln Lafayette, LA 70508

Overview
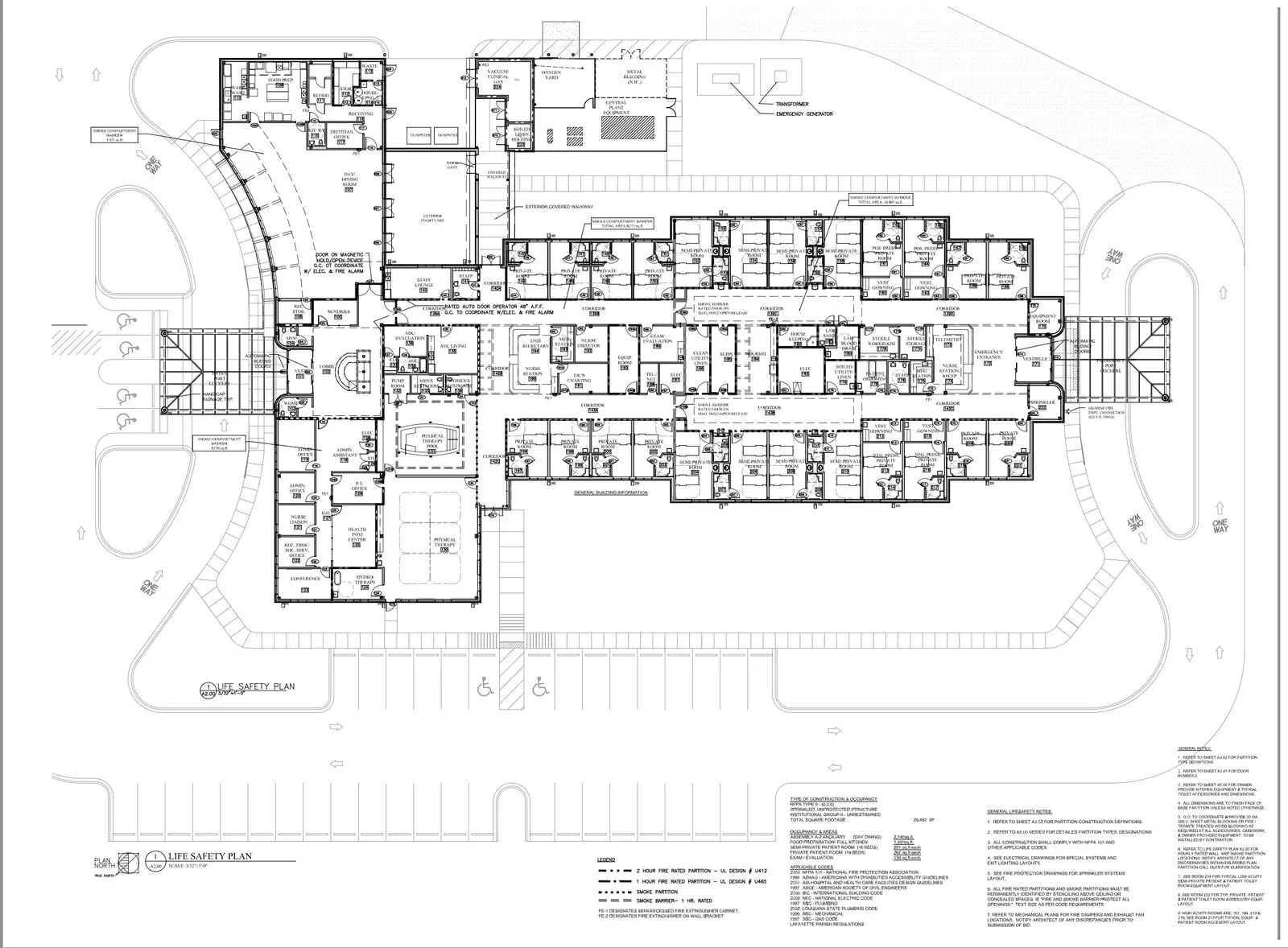
307 Polly Lane is a 27,000-square-foot medical facility situated on 4.53 acres in the established Heart Hospital of Lafayette Subdivision. Built in 2006 and currently operating as a physical rehabilitation hospital, the property offers an adaptable floor plan ideal for continued healthcare use, including rehabilitation, long-term acute care, in-patient behavioral health, skilled nursing, or specialty surgery. The site includes approximately 86 existing parking spaces with ample room for expansion on the 1.4-acre undeveloped portion. Lafayette’s medical market continues to expand, with new facilities opening across the metro area and along the Camellia corridor. Positioned near the Heart Hospital, medical office buildings, and a surgery center, 307 Polly Lane presents a prime opportunity for an operator or investor seeking to capitalize on the region’s strong healthcare demand through adaptive reuse, build-to-suit leases, or integration into a larger medical park.
27,000 sq ft medical facility for lease
Adaptable floor plan for healthcare use
86 existing parking spaces
Room for expansion on undeveloped portion (1.4 Acre(s))
Strong healthcare demand in the region
Lease Spaces
| Name | Rate | SF | Acres | Media | |
|---|---|---|---|---|---|
| 307 Polly Ln | $35 /SF/Year | 27,000 SF | 4.53 ac |
Attachments
For Sale/Lease
- Lease Rate
- $35 SF/year
- Available SF
- 27,000 SF
- Sale Price
- $1
- Building Size
- 27,000 SF
- Acres
- 4.53 ac
- Zoning
- CM-1
- Zoning Description
- Commercial Mixed 1
- Lease Type
- NNN
- Year Built
- 2006
- Parking Spaces
- 86
- County
- Lafayette Parish
- Created
- 2025-08-13
- Updated
- 2025-10-08
- Listing ID
- 41caee06
- Parcel APN
- 6122206










