Distribution Space
10058 E. Airline Dr, Saint Rose, LA 70087

Overview
45,810 SF of warehouse/distribution space available for lease near Louis Armstrong New Orleans International Airport in the New Orleans MSA.
Located across the street from James Business Park and only 1 mile from Louis Armstrong New Orleans International Airport. The property is situated 14 miles west of downtown New Orleans and approximately two miles east of the Interstate 310 interchange at Airline Highway (U.S. 61). The I-310 connects I-10 with Highway 90 via the Hale Boggs (Destrehan-Luling) Mississippi River Bridge.
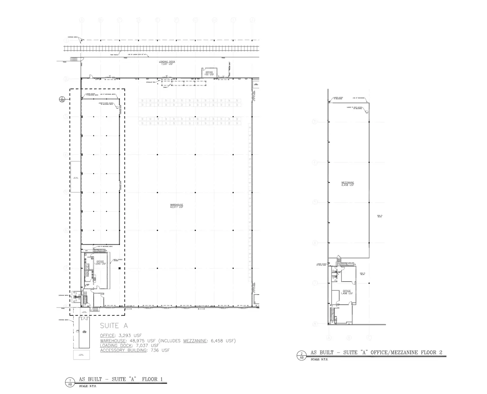
Total Area: 45,810 SF
Office Area: 3,293 SF
Warehouse Area: 42,517 SF
Clear Height: 24' at Eave; 32' at Center
Fully Sprinklered
Can be upgraded to ESFR
Column Spacing: 40' x 40'
Total Dock Doors: 6
Large Truck Court
Active rail access with covered rail car loading in the rear
Excellent Access
Lease Spaces
| Name | Rate | SF | Vacant | |
|---|---|---|---|---|
| Suite A | $7.5 /SF/Year | 45,810 SF | Yes |
Attachments
Links
For Lease
Secondary Uses: Warehouse/Distribution, Manufacturing
- Lease Rate
- $7.5 SF/year
- Available SF
- 45,810 SF
- Building Size
- 158,276 SF
- Acres
- 9.819 ac
- Lease Type
- NNN
- Number of Buildings
- 1
- Floors
- 1
- Construction Type
- Framed
- Sprinklers
- ESFR
- Submarket
- St Charles Parish
- Nearest MSA
- New Orleans-Metairie-Kenner
- Property Status
- Existing
- Dock Number
- 18
- Drive-In Number
- 1
- County
- St. Charles Parish
- Created
- 08/20/2024
- Updated
- 11/14/2025
- Listing ID
- 977f94d6
- Parcel APN
- 551800000S-2






