Turnkey Medical Suite in Extremely Visible Shopping Center
3405 Williams Blvd, Kenner, LA 70065

Overview
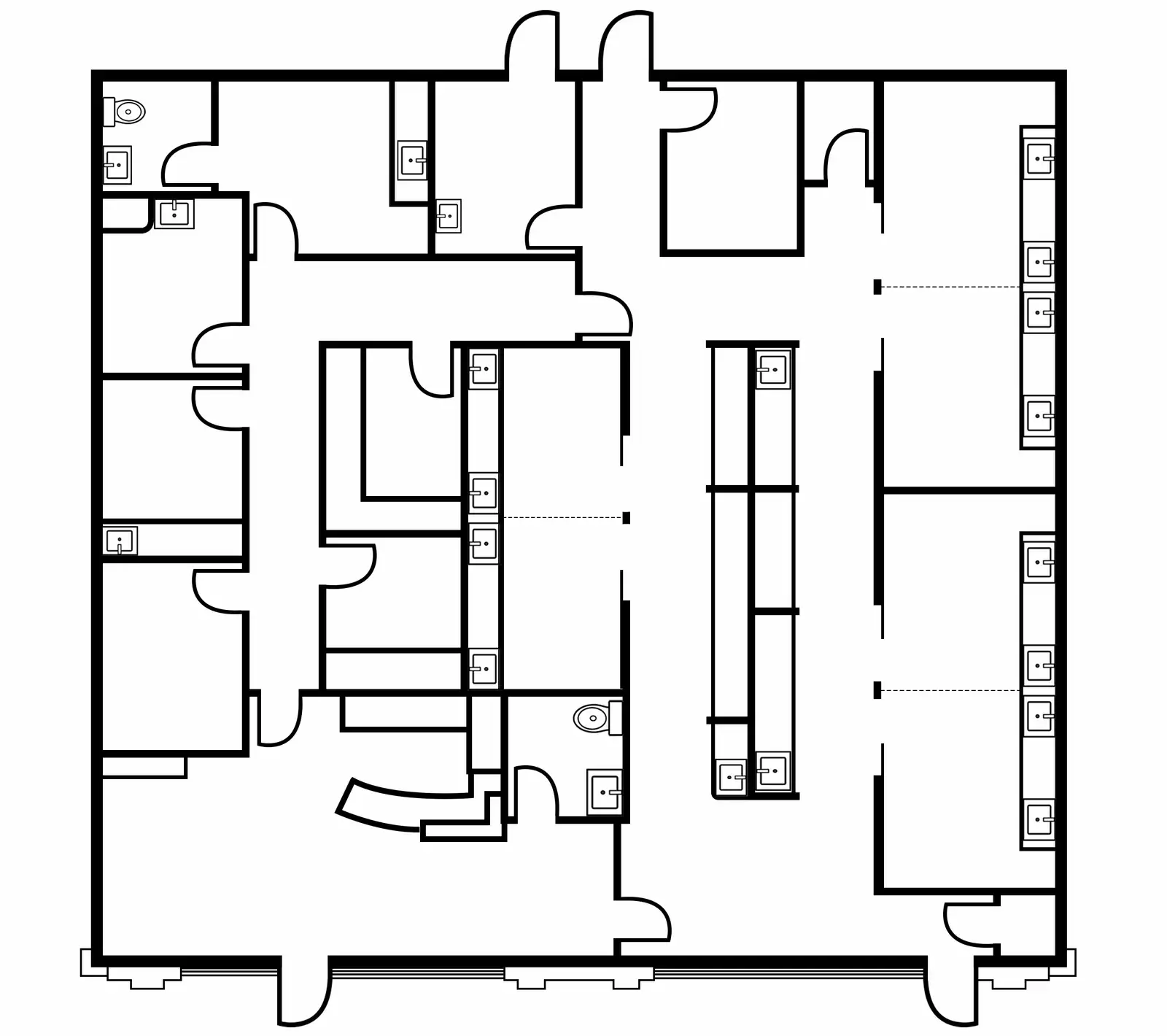
Now available for lease, Suite 2-3 is a turnkey medical space (previously occupied by Fresenius) and move-in ready.
Located in the heart of Kenner's financial and retail district, Williams Square offers a multi-tenant retail hub which stands out for strategic location and modern amenities.
Situated right off the signalized intersection of Williams Blvd and W Esplanade Ave, the shopping center benefits daily exposure to approximately ±34,210 vehicles.
The shopping center provides ample off-street parking.
The landlord is open to Tenant Improvement for qualified tenants.
Modified Gross lease type – tax, insurance, exterior maintenance, structure and roof costs included in rent
• Turnkey medical space previously occupied by Fresenius • Most visible intersection in Kenner – ±34,210 Daily Traffic • Pylon signage and ample parking • Modified Gross lease type
Lease Spaces
| Name | Rate | SF |
|---|---|---|
| Turnkey Medical Suite in Extremely Visible Shopping Center | $22 /SF/Year | 3,000 SF |
Links
For Lease
Secondary Uses: Strip Center
- Lease Rate
- $22 SF/year
- Available SF
- 3,000 SF
- Building Size
- 17,241 SF
- Acres
- 1.905 ac
- Zoning
- C-2
- Zoning Description
- General Commercial
- Lease Type
- Modified Gross
- Business Park
- Williams Square.
- Number of Buildings
- 1
- Floors
- 1
- Construction Type
- Framed
- Submarket
- Airport-Metairie-Kenner
- Property Status
- Existing
- County
- Jefferson Parish
- Created
- 05/17/2024
- Updated
- 08/14/2025
- Listing ID
- 97c4a100
- Parcel APN
- 920020192








