Fully Leased Two-Building Industrial Investment | Credit Tenant | 9.3% Cap Rate
5969 McClelland Dr, Baton Rouge, LA 70805

Overview
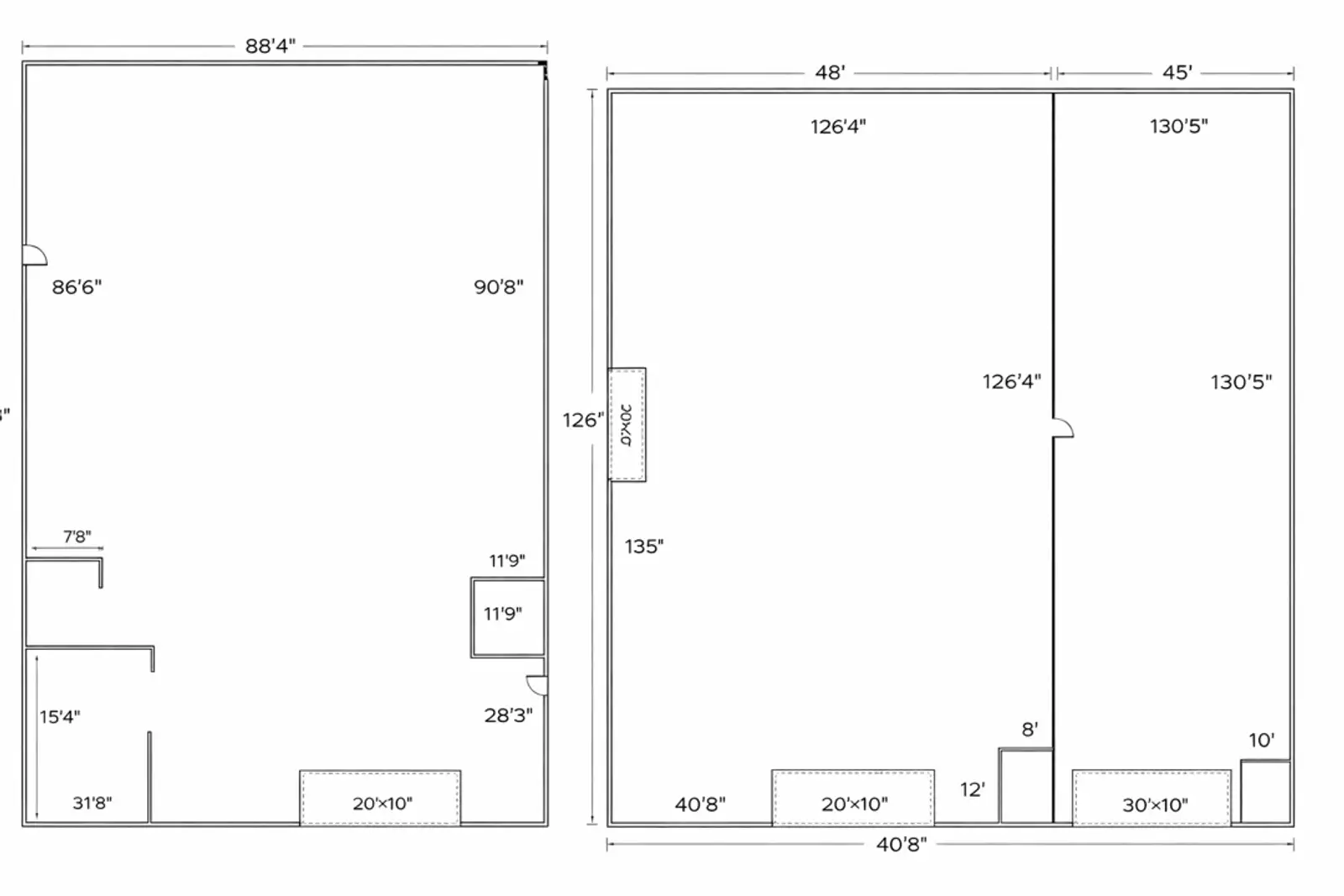
The offering includes two adjacent industrial warehouse buildings located at 5959 and 5969 McClelland Drive, just off Airline Highway in Baton Rouge, Louisiana. Building 1 contains 19,651 SF and Building 2 contains 11,361 SF, for a total of 31,012 SF. Both buildings are fully sprinklered with 18′ eave heights and are equipped with high-strength reinforced concrete slab foundations designed to support heavy equipment, as confirmed by geotechnical reports. Building 1 features three 20′ × 18′ overhead roll-up doors, while Building 2 includes two 20′ × 18′ overhead doors. The electrical system is serviced with 8,000 amps of 3-phase power, an existing air compression system, and full security fencing. Formerly utilized by a regional wholesale tire operator, the buildings are currently leased to GeoSurfaces, Inc., a subsidiary of TenCate, through November 30, 2029, with current NOI of approximately $135,000 annually. Although leased, the buildings are not currently occupied, offering a buyer flexibility for future owner-occupancy, partial leasing, or re-tenanting strategies.
Property Highlights
- Two (2) adjacent industrial warehouse buildings located at 5959 & 5969 McClelland Drive, just off Airline Highway in Baton Rouge, LA
- Total Building Area: 31,012 SF: Building 1: 19,651 SF.
- Building 2: 11,361 SF
- Fully sprinklered buildings
- 18′ eave heights throughout
- Overhead Doors: Building 1: Three (3) – 20′ x 18′ OHD doors. Building 2: Two (2) – 20′ x 18′ OHD doors
- 8,000 amps, 3-phase electrical service
- High-strength reinforced concrete slab foundations capable of supporting heavy equipment (per geotechnical reports)
- Former wholesale tire facility, designed for heavy industrial use
- Air compression system in place
- Fully secured site with perimeter security fencing
Tenant & Lease Information
- Tenant: GeoSurfaces, Inc. (Parent Company: TenCate)
- Lease Term: Through November 30, 2029
- Rent: $13,180.09/mo NN (TT pays Taxes and Insurance)
- 2% Annual Rent Increases
- Current NOI: Approximately $135,000 annually
- Occupancy: Not currently occupied, providing future flexibility
- Potential for owner-occupancy of one building
- Ability to retain tenant, pursue a partial lease-back, or re-tenant one or both buildings over time
For Sale
- Sale Price
- $1,450,000
- Price Per SF
- $46.8/SF
- Cap Rate
- 9.31%
- Building Size
- 31,012 SF
- Warehouse SF
- 31,012 SF
- Acres
- 1.2 ac
- Zoning
- M1
- Zoning Description
- Light Industrial
- Gross Income
- $158,161.08
- Net Operating Income
- $135,000
- Total Expenses
- $23,250
- Tenant
- GeoSurfaces, Inc.
- Building Name
- 5959/5969 McClelland Drive
- Nearest MSA
- Baton Rouge
- Tax ID Number
- 439932
- Property Use Type
- Investment
- Property Status
- Existing
- Average Occupancy Rate
- 100%
- Drive-In Number
- 3
- Drive-In Size
- 20'x18'
- Ceiling Height
- 18'
- Clear Height
- 20'
- Eave Height
- 18'
- Power
- 8000 A, 3 Phase
- County
- East Baton Rouge Parish
- Listed
- 01/14/2026
- Updated
- 01/14/2026
- Listing ID
- 99a036d4
- Parcel APN
- 439932










