High-Visibility Hard-Corner Downtown Site
1171 Annunciation St, New Orleans, LA 70130

Overview
Located at the highly visible, signalized hard corner of Annunciation Street and Calliope Street, 1171 Annunciation Street is a rare, high-profile redevelopment opportunity in one of New Orleans’ most dynamic growth corridors. It is located at the signalized hard corner in a high-traffic, high-growth corner, positioned at the intersection of Downtown and Uptown. It is located adjacent to an exit and entrance to the Pontchartrain Expressway (Highway 90) and I-10.
The property is situated just steps from the Warehouse/ Arts District, the Central Business District, the New Orleans Ernest N. Morial Convention Center, and a dense concentration of hotels, restaurants, museums as well as Class A office towers. It is also adjacent to multi-unit residential communities like The Saulet and The Delaneaux.
The Convention Center, the nation’s sixth largest, plays a key role in the continued development activity in the downtown area. Recent plans include the approval to open an Omni Hotel, the latest luxury hotel to come to this area. The River District is being developed on approximately 47 acres of land adjacent to the Convention Center, blocks away from this site. The highlight is Shell Oil Building, a new, six-story, energy-efficient office building that will be home to Shell’s New Orleans team.
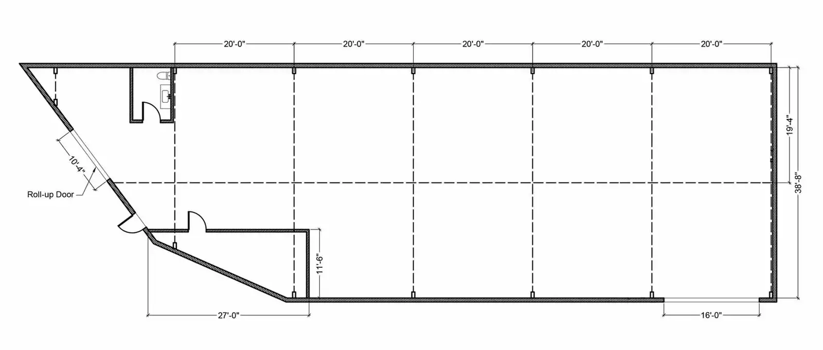
The current structure is a warehouse that the owner is using for storage. Utilities are in place and there are no environmental issues. With HU-MU zoning, there is quick redevelopment potential for retail, QSR with drive thru, bank with drive thru, and/or mixed use.
With strong surrounding demographics, proximity to major traffic generators, and limited available hard corner sites remaining in this submarket, 1171 Annunciation Street is an advantageous site for strategic use. Plans are included in the sale of this property.
- Ground Lease or Build to Suit available
- Signalized hard-corner with exceptional visibility
- Rare development site in high-growth corridor
- Conceptual renderings and plans included with purchase
- Red iron steel frame building perfect for adaptive reuse for redevelopment or ground up
- HU-MU zoning permits a variety of uses
- Utilities (gas, water, electricity) in place
- Flood Zone X (no flooding)
- Attached is a development summary of the cost per sq ft at each development envelope at each maximum height
For Sale
Secondary Uses: Retail
- Sale Price
- $644,950
- Price Per SF
- $143.3/SF
- Building Size
- 4,502 SF
- Acres
- 0.1321 ac
- Zoning
- HU-MU
- Zoning Desc.
- Historic Urban Neighborhood Mixed Use District
- Submarket
- Warehouse District
- Nearest MSA
- New Orleans-Metairie
- Property Status
- Speculative
- Nearest Interstate
- I-10 - 1 mi
- Nearest Hwy
- US-90 - 1 mi
- Nearest Airport
- New Orleans Louis Armstrong International Airport - 15 mi
- Nearest Port
- Port of New Orleans - 1 mi
- Parish
- Orleans
- Available
- 03/25/2026
- Listed
- 03/27/2026
- Updated
- 03/27/2026
- Listing ID
- a74910d2
- Parcel APN
- 102102702







