1000 N Rampart St
1000 N Rampart St, New Orleans, LA 70116

Overview
Creative Financing / Assumable Debt
Historic mixed-use redevelopment opportunity located along the North Rampart Street corridor at the edge of the French Quarter and Tremé.
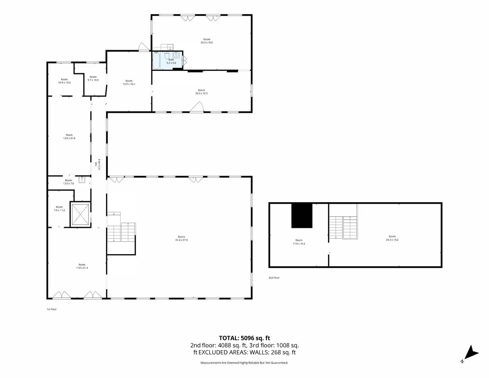
The property consists of an approximately 7,615 SF historic structure situated on a corner lot with frontage along North Rampart Street and St. Philip Street. Based on existing floor plans, the property contains approximately 10,000 SF of estimated rentable area.
By direct measurement, the seller further estimates total usable area of approximately 11,581 SF, inclusive of conditioned interior space plus 50% allocation of gallery/balcony areas. Originally constructed circa 1870, the building retains substantial historic fabric including masonry bearing walls, heavy timber framing, original galleries, and full-length second-floor ironwork overlooking Rampart Street.
Zoned VCC-2 (Vieux Carré Commercial District), the property allows a broad range of commercial, residential, and mixed-use configurations, subject to applicable approvals.
Interior improvements are partially completed, providing flexibility for final build-out. A full-height third-level attic spans the structure and offers meaningful expansion potential for additional conditioned square footage, mezzanine space, or loft-style programming, subject to approvals.
The building has received State and Federal Historic Tax Credit Part 1 approvals, confirming contributing historic status and eligibility for rehabilitation tax credits.
Property offered as-is.
- Historic corner building located along the North Rampart Street corridor
- Edge-of–French Quarter location at Rampart Street and St. Philip Street
- Approx. 7,615 SF enclosed structure
- Approx. 10,000 SF rentable interior area.
- Zoned VCC-2 (Vieux Carré Commercial District)
- Circa 1870 construction
- Dual street frontage with strong visibility
- Full-length second-floor wrought-iron gallery overlooking Rampart Street
- Full-height third-level attic with expansion potential
- Partial interior build-out completed
- State & Federal Historic Tax Credit Part 1 approvals in place
- Suitable for commercial or mixed-use redevelopment (subject to approvals)
- Off Street Parking
- Property offered as-is
For Sale
Secondary Uses: Restaurant, Tavern/Bar/Nightclub
- Sale Price
- $1,999,000
- Price Per SF
- $262.5/SF
- Building Size
- 7,616 SF
- Acres
- 0.1536 ac
- Is Vacant
- Yes
- Zoning
- VCC-2
- Zoning Desc.
- Vieux Carre Commercial District
- Building Name
- 1000 N Rampart Building
- Building Class
- B
- Floors
- 3
- Year Built
- 1870
- Parish
- Orleans
- Available
- 01/30/2026
- Listed
- 02/20/2026
- Updated
- 04/28/2026
- Listing ID
- dece4960
- Parcel APN
- 208102321




































