9228 Mammoth Ave
9228 Mammoth Ave, Baton Rouge, LA 70814

Overview
Motivated seller, seeking to sell and complete a 1031 by end of year. Bring us an offer!
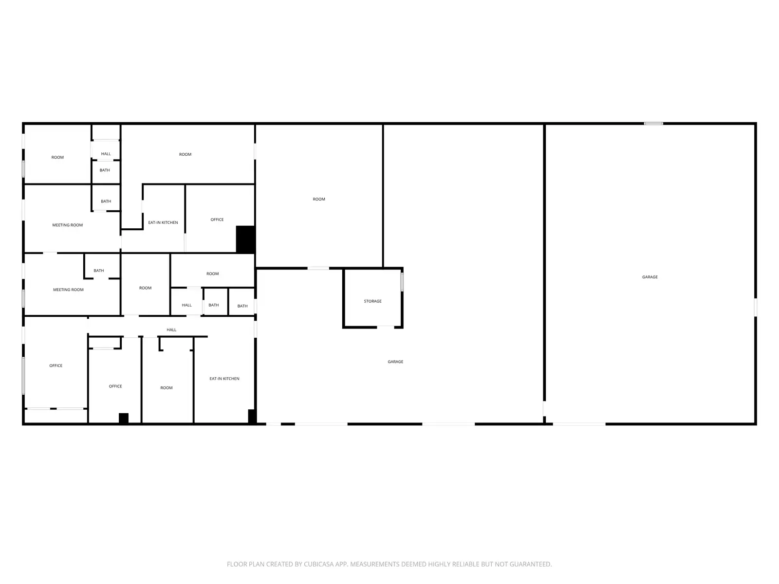
+/-8,460 SF office/warehouse space located on Mammoth Ave, just north of S Choctaw Dr., in Baton Rouge.
Building is comprised of approximately 2,760 SF of office (33%) and 5,700 SF of warehouse (67%).
The warehouse features three (3) grade level roll up doors, 9'6" eaves, 3 phase power, 10'x10' shop office, and bathroom. Warehouse is 60' x 95'.
The office space is configured into four (4) individual suites that can be leased-out, or can be occupied and connected to create a contiguous space. The offices are currently all on one electric/water meter. Each office space has it's own individual bathroom. Two (2) of the spaces contain a kitchentte, and two (2) feature full bathrooms with showers. One of the spaces has washer-dryer hook ups.
The building comes with a shared access driveway to the adjacent building (same owner), which has been rented to Otis Elevators for over 25 years. The paved area surrounding the side and rear of the building has been used for light laydown and outdoor storage.
There is a covered truck lift in the rear of the building that will be included in the sale. The owner seeks to lease-back two (2) office suites for a period of 1-2 years at a rental rate of $800-900 / month.
HVAC for the office space was replaced within the last five (5) years.
For Sale
- Sale Price
- $300,000
- Price Per SF
- $35.5/SF
- Building Size
- 8,460 SF
- Office SF
- 2,760 SF
- Warehouse SF
- 5,700 SF
- Acres
- 0.34 ac
- Zoning
- M1
- Zoning Description
- Light Industrial
- Eave Height
- 9' 6"
- Yard
- Fenced, Paved
- County
- East Baton Rouge Parish
- Available
- 09/23/2025
- Created
- 09/23/2025
- Updated
- 11/06/2025
- Listing ID
- 3d80a616
- Parcel APN
- 976954







