7600 ANTOINE BOULEVARD
7600 Antoine Blvd, Shreveport, LA 71129

Overview
SEE ATTACHED MARKETING BOOKLET FOR DETAIL ON EACH INDIVIDUAL BUILDING. Construction: Insulated Metal Walls, Manufacturing-Grade Concrete Flooring Sprinkler: Wet Access: I-20, I-49, 526, & 79/511 Rail: Multiple active spurs on site - Union Pacific Railroad 30’ - 50’ Ceiling clearance 50’ x 50’ Column spacing (2) 100’ x 500’ Crane bays with 50’ Clear (2) 65-ton internal crane rails Docks and grade level doors UTILITY DESCRIPTION Electricity Supplier Southwestern Electric Power Company SWEPCO/AEP Natural Gas Supplier Centerpoint Energy and Renovan Water Supplier City of Shreveport Sewer Supplier City of Shreveport Telecommunications Supplier AT&T/Verizon/Comcast
Also, the North Louisiana Economic Partnership (NLEP) www.nlep.org is available to assist a qualified Lessee to pursue all available incentives that may be offered for a business or industry considering locating to north Louisiana especially if there is significant employment involved. Please contact agent for more details on available programs
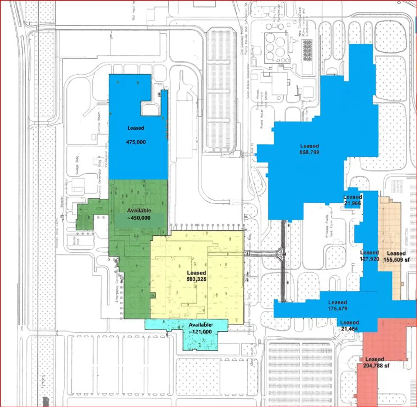
The only remaining available space as of 01 AUG 2025 is depicted on the floor plan of BUILDING C. 127k of office, cafeteria, locker rooms, plus 916,000 SF of warehouse/manufacturing area available .
The activity for this space remains high. Call or email to schedule a call or tour. Lessor will require basic knowledge of tenant use, credit, and tenant improvement requirements.
Lease Spaces
| Name | Rate | SF | Available Date |
|---|---|---|---|
| Suite BLDG C | $4.75 - $4.95 /SF/Year | 671,000 SF | 10/17/2025 |
Attachments
For Lease
Secondary Uses: Manufacturing
- Lease Rate
- $4.75 - $4.95 SF/year
- Available SF
- 671,000 SF
- Building Size
- 3,500,000 SF
- Office SF
- 121,747 SF
- Warehouse SF
- 450,000 SF
- Acres
- 439.762 ac
- Is Vacant
- Yes
- Zoning
- I-2
- Zoning Description
- HEAVY INDUSTRIAL
- Lease Type
- NNN
- Expenses
- $1.30 /SF
- Signage
- On Building and Monument
- Building Name
- Building C
- Number of Buildings
- 3
- Floors
- 1
- Year Built
- 1978
- Construction Siding
- Wood
- Construction Type
- Steel
- Sprinklers
- Other
- Nearest MSA
- Shreveport-Bossier City
- Property Status
- Existing
- Office Ceiling Height
- 24' 6"
- Ceiling Height
- 25' 6"
- Column Spacing
- 45x45
- Lighting
- LED
- Yard
- Fenced, Paved
- Nearest Interstate
- I-20 - 3 mi
- Nearest Highway
- US HWY 79/80 - 2 mi
- Nearest Airport
- SHV - 7 mi
- Nearest Port
- Port of Caddo Bossier - 12 mi
- Power Provider
- Private - AEP/SWEPCO
- Power
- 480 A, 3 Phase
- Natural Gas Provider
- Private - Delta Utilities
- County
- Caddo Parish
- Available
- 08/21/2019
- Created
- 09/12/2013
- Updated
- 11/25/2025
- Listing ID
- f52f4ee3
- Parcel APN
- 171528000002800








