Active
3225 Danny Parkway
3225 Danny Parkway, Metairie, LA 70002
1 / 10

Overview
-Second floor office spaces available in Metairie
-Both Suite 200-201 and Suite 202 include kitchen and bathrooms
-Great visibility and easy access
-Off street parking
-Join ENT of New Orleans and the Alteration Shoppe
-No elevator.
Tenant pays for own electric meter, and janitorial services inside the Suite.
Please contact agents with any questions or additional information.
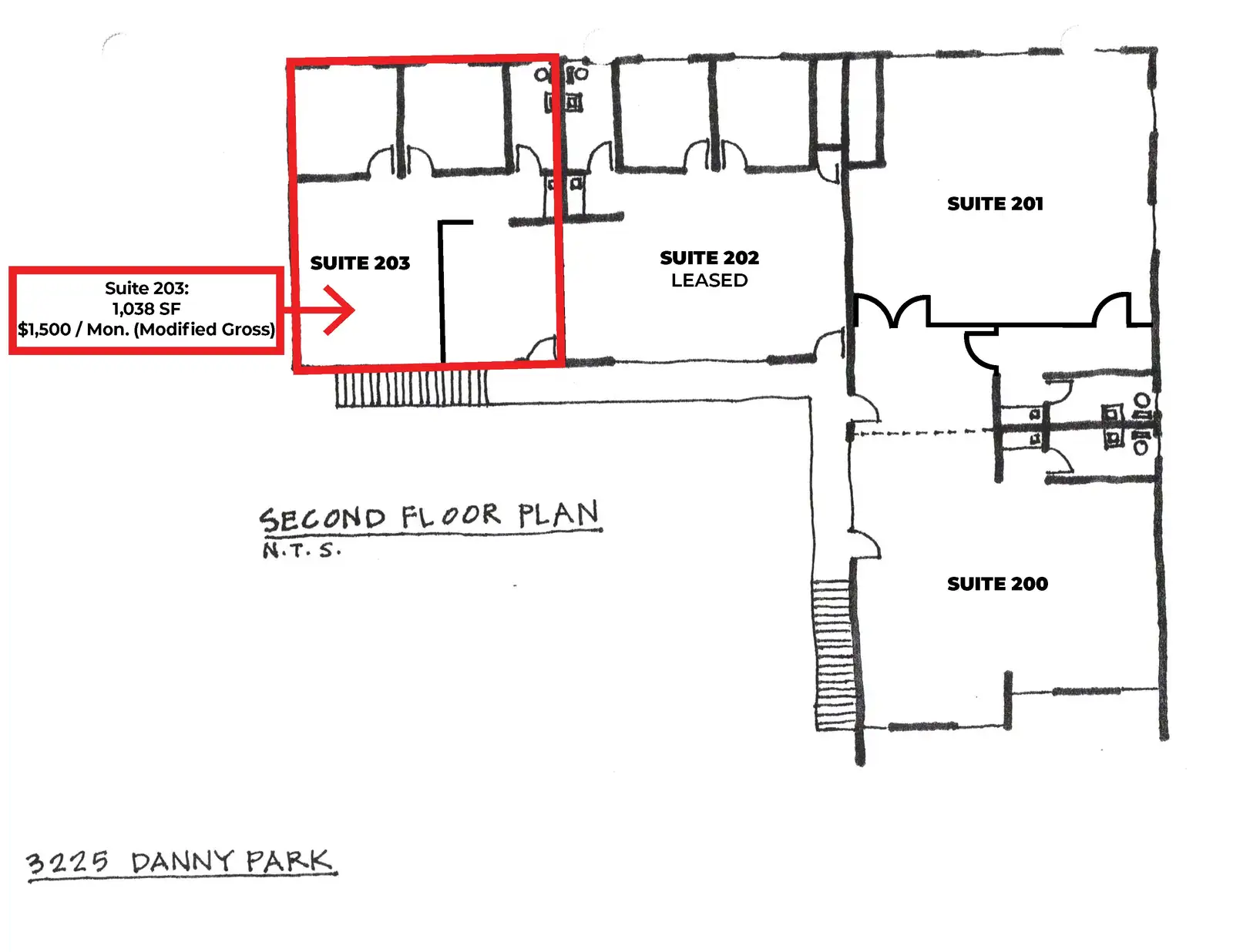
Lease Spaces
| Name | Rate | SF | Status | Media | |
|---|---|---|---|---|---|
| Suite 203 | $1,500 /Month | 1,038 SF | available | ||
| Suite 201-202 | $3,000 /Month | 2,600 SF | available |
Attachments
For Lease
Office
- Lease Rate
- $1,500 - $3,000 Month
- Available SF
- 1,038 - 2,600 SF
- Total Available SF
- 3,638 SF
- Zoning Desc.
- Neighborhood Commercial District
- Lease Type
- Modified Gross
- Signage
- On Building and Monument
- Showing
- Contact Broker/Agent
- Building Name
- 3225 Danny Parkway
- Floors
- 2
- Parish
- Jefferson
- Available
- 07/31/2025
- Listed
- 07/31/2025
- Updated
- 11/21/2025
- Listing ID
- 625b6df3
- Parcel APN
- 3822549287








